bat365娱乐
电话:0576-85021388/85138880
传真:0576-85021389
联系人:罗淡成17357631888
网址:
地址:浙江省临海江南街道花溪路下岙余
该系列泵可直接从大气起动抽气,它可单独使用,也可作为增压泵、罗茨泵、气体循环冷却罗茨泵、油扩散泵、分子泵的前级泵、维持泵、钛泵的预抽泵。可供真空镀膜、真空热处理、真空冶炼、电子管、灯泡、化工、包装、吸塑成形、光伏、工矿企业的蒸馏、干燥、冷冻、过滤、理化等真空作业中。
一、特点
1、此泵可在5-40℃范围内和进气口压强<1.33×103Pa的条件下,允许长期连续工作;
2、设有气镇阀,可抽除少量水蒸汽,延长泵油使用时间(除2X-4A外);
3、霓虹灯制造专用真空泵,单晶炉、多晶炉、层压机配套等真空作业。
4、可单独作低真空泵用,也可与其它高真空泵组合作前级泵用。
二、技术参数

三、抽气速率曲线

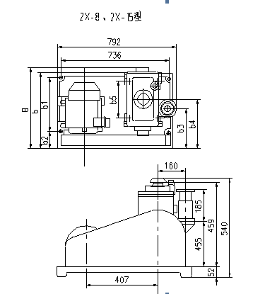
外形尺寸图
2X-A系列直联旋片式真空泵外形及安装尺寸

